滑动了解更多 
材质:PPR、FRPP、PP、PPH、UPVC、CPVC、PVDF

产品概述:
耐腐蚀塑料阻火器、PVDF 耐高温阻火器(内置陶瓷拉西环)。设计先进、结构合理、重量轻、耐腐蚀、易检修、安装方便,阻火芯采用防腐材料,F4、PP、PVDF、304、316L,耐腐蚀、易清洗,在化工生产中,二合一装置放空防止回火,得以广泛应用。

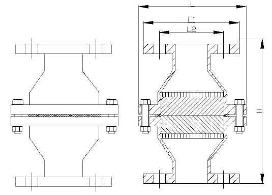
| DN | 25 | 32 | 40 | 50 | 65 | 80 | 100 | 125 | 150 | 200 | 250 | 300 | 400 |
| H | 160 | 210 | 210 | 230 | 260 | 280 | 300 | 380 | 400 | 520 | 580 | 620 | 680 |
| L | 125 | 140 | 140 | 165 | 200 | 220 | 235 | 280 | 300 | 400 | 480 | 500 | 590 |
| L1 | 115 | 135 | 145 | 160 | 180 | 195 | 215 | 245 | 280 | 335 | 400 | 445 | 580 |
| L2 | 85 | 100 | 110 | 125 | 145 | 160 | 180 | 210 | 240 | 295 | 350 | 400 | 515 |